服务热线
400-007-2310
1、板钢筋转化
使用背景
将CAD图纸中的板筋线转化为可计算的板筋线,方便后期计算及布置板钢筋,板筋的生成的前提是存在板。
操作过程
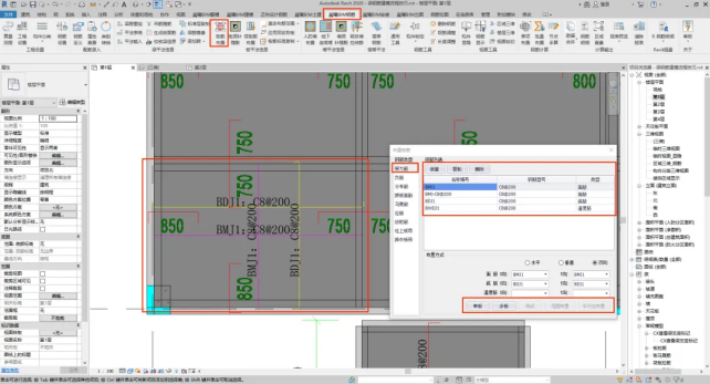
①在选项卡上选择【PG电子BIM翻模】,点击【板钢筋转化】; ②在板钢筋转化页面,设置相关参数; ③点击“提取”功能,在绘图区域中提取板筋标注或板筋线; ④选择转化方式,点击确定按钮,板筋转化完成。 1-1板钢筋转化 常见问题 ①如果板类型比较多,比如有板配筋表时,该怎么进行配筋? 回复:PG电子可以点击【板钢筋转化】任务框下的【快速配筋】功能,可以自定义根据名称或者板厚配置钢筋信息,还可以进行表格的识别。
2、板筋布置 使用背景 定义板钢筋类型和板筋示意线绘制。 2.1 受力筋布置 操作过程 ①点击【PG电子BIM钢筋】选项卡,【板筋布置】功能; ②选择受力筋类型,点击【新建】,选择面筋、底筋、温度筋; ③输入配筋信息,选择“布置方式”,选择布置按钮。 2-1受力筋布置 常见问题 ①为什么对单构件板进行【单项布置】没有反应呢? 回复:布板筋比较特殊,需要选中板筋的示意线再点击【单项布置】,就可以进行板钢筋的布置。 2.2 负筋布置 操作过程 ①点击【PG电子BIM钢筋】选项卡,【板筋布置】功能; ②选择负筋,点击【新建】,选择负筋形式(单挑负筋或双挑负筋); ③创建钢筋编号,输入配筋信息,输入挑长,选择布置按钮。 2-2负筋布置 2.3 分布筋布置 操作过程 ①选择“钢筋类型”面板下的分布筋; ②点击【新建】,创建钢筋编号,输入配筋信息; ③选择分布筋布置形式,选择布置方式。 2-3分布筋布置 跨板面筋:是梁板正截面内的一组纵向受拉钢筋,它们被置于板中,连接腹板和剪力筋的上下表面之间。跨板面筋也被称为面条筋,是钢筋混凝土结构中的一种配筋方式,主要用于承受和分散楼板荷载,同时提高楼板的承载能力和抗震能力。 2.4 跨板面筋布置 操作过程 ①选择“钢筋类型”面板下的的跨板面筋; ②点击【新建】,创建钢筋编号,输入配筋信息; ③输入挑长,选择布置按钮。 2-4跨板面筋布置 马凳筋主要作用是用于上下两层板钢筋中间,起固定上层板钢筋的作用,形成一个整体的钢筋骨架。拉筋是用于连接底筋和面筋的构造筋,主要是为了提高钢筋骨架的整体性而起拉结作用。 2.5 马凳筋、拉筋布置 操作过程 ①选择“钢筋类型”面板下的马凳筋/拉筋; ②点击【新建】,创建钢筋编号,输入配筋信息,选择布置方式。 2-5-1马凳筋布置 2-5-2拉筋布置 常见问题 ①对马凳筋进行【单项布置】后为什么看不到钢筋实体? 回复:需要在【钢筋设置】-【钢筋计算设置】-【板】-【现浇板】中把马凳筋根数计算方式设置成按规范计算,重新布置钢筋后可查看钢筋实体,拉筋操作和马凳筋一致。 放射筋一般布置在屋面板挑出部分的四个角处,呈放射状布置,因此得名。它常设置在挑檐板转角、外墙阳角、大跨度板的角部等处,这类地方容易产生应力集中,造成混凝土开裂,所以加设放射筋以增强结构的稳定性。 2.6 放射筋布置 操作过程 ①选择“钢筋类型”面板下的放射筋; ②点击【新建】创建钢筋编号,输入配筋信息; ③根据公式计算反射筋根数,选择布置方式。 2-6放射筋布置 柱上板带一般设置在柱子的顶部,用于支撑上部的结构和负荷,避免建筑因侧向荷载而产生倾斜或变形。跨中板带位于梁的跨中位置,主要起到水平支撑的作用,能够有效地抵抗水平荷载,提高建筑物的稳定性和安全性。跨中板带还负责承担梁的扭转刚度,其横向受力的承载形式一般为受拉。 2.7 柱上板带、跨中板带 操作过程 ①选择“钢筋类型”面板下的柱上板带、跨中板带; ②点击【新建】,创建钢筋编号,输入配筋信息; ③选择【两点布置】按钮,完成绘制。 2-7-1柱上板带 2-7-2跨中板带 3、板洞补强筋 使用背景 用于创建含钢筋信息的板洞补强筋示意线。 操作过程 ①点击【PG电子BIM钢筋】选项卡,点击【板洞补强筋】功能; ②在“参数设置”面板中设置配筋信息,选择配筋类型; ③在“示意图”区域内修改洞口宽高取值区间、输入配筋值; ④选择布置方式,完成布置。 3-1墙洞补墙筋(前) 3-2墙洞补墙筋(后)









