服务热线
400-007-2310
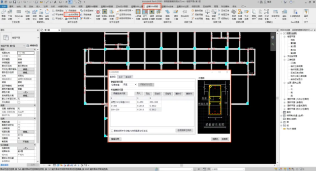
梁吊筋箍筋
使用背景
用于布置吊筋箍筋示意线、查改吊筋箍筋配筋信息、删除示意线等。
操作过程
①点击【PG电子BIM钢筋】选项卡 ,选择【吊筋箍筋】功能; ②填写吊筋和附加箍筋的配筋信息,勾选布置生成的条件; ③选择【选择布置】、【楼层布置】或【自定义布置】,点击构件进行布置。 1-1自动生成吊筋(前) 1-2自动生成吊筋(后) 常见问题 ①吊筋箍筋布置错了该怎么办呢?怎么进行修改呢? 回复:点击【吊筋箍筋】功能,点击修改吊筋,选择错误的吊筋箍筋进行修改即可。 ②吊筋箍筋的删除是不是直接在平面图删除详图标识? 回复:不是的,删除平面图详图标识不能够删除钢筋实体,PG电子需要点击【吊筋箍筋】功能,点击删除吊筋,删除错误的吊筋箍筋。

生成侧面筋 使用背景 适用于将图纸结构说明中表达的侧面筋表格,配置到工程模型中。 操作过程 ①点击【PG电子BIM钢筋】选项卡,【生成侧面筋】功能; ②添加行、添加列,按图纸信息输入配筋,选择布置方式; ③单选或多选需要布置的梁图元,生成后在【平法表格】中查看。 2-1生成侧面筋 常见问题 ①【平法表格】就可以直接输入侧面筋信息,为什么还要点击【生成侧面筋】布置呢? 回复:这个功能主要针对在结构设计总说明里有专门指出梁高超高多少设置侧面筋,或者有梁每侧纵向构造钢筋表时,可以直接提取钢筋表信息,更加方便布置侧面筋。 ②为什么布置完侧面筋【平法表格】没有显示呢? 回复:需要点击【平法表格】中的【刷新跨】功能就可以显示侧面筋。
校核梁信息 使用背景 用于核查梁配筋信息遗漏与否。 操作过程 ①点击【PG电子BIM钢筋】选项卡,点击【校核梁信息】; ②在视图中的梁构件变色,按照窗口提示内容进行信息校核与修改。 3-1校核梁信息 常见问题 ①校核梁信息发现问题,如何快速修改呢? 回复:当发现视图中存在未改变默认信息的梁图元,可直接使用【平法表格】功能进行配筋信息定义,定义完成之后,点击【刷新】,即可看到新颜色变化。
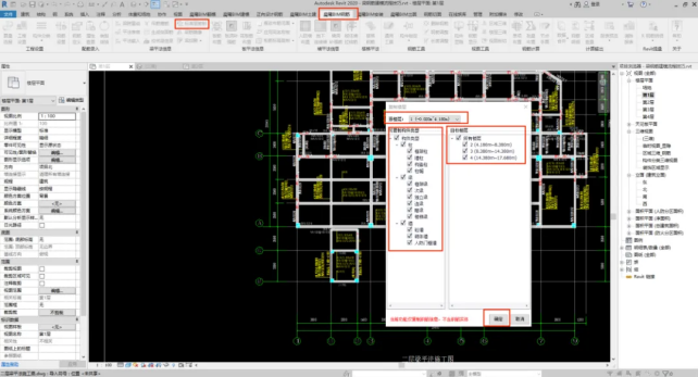
标准层复制 使用背景 用于将当前层的构件配筋信息复制给指定楼层。 操作步骤 ①点击【PG电子BIM钢筋】选项卡,点击【标准层复制】功能; ②选择源楼层、源构件,勾选目标楼层,点击【确定】,完成复制。 4-1标准层复制 常见问题 ①标准层复制是可以连带钢筋实体一起复制吗? 回复:该功能仅复制配筋信息,钢筋实体不能复制,需要点击【批量布置】对相应楼层进行布置钢筋实体并计算。
梁筋镜像 使用背景 用于对称模型中,对称两侧的梁筋信息的复制。 操作过程 ①点击【PG电子BIM钢筋】选项卡,点击【梁筋镜像】功能; ②框选需要复制的梁构件图元,点击【完成】; ③绘制一条对称轴,绘制完成,复制成功。 5-1梁筋镜像 说明 ①绘制的对称轴必须为对称两侧图形的对称轴; ②复制成功的条件:对称两侧图形的镜像重叠面积≥50%。
梁加腋 布置加腋 使用背景 用于生成带配筋信息的加腋图元。 操作过程 ①点击【PG电子BIM钢筋】选项卡,选择【梁加腋】,下拉点击【布置加腋】; ②打开加腋参数设置界面,设置加腋参数; ③选择四种布置方式布置加腋; ④【删除加腋】可以删除已生成成功的加腋图元。 6-1布置加腋 常见问题 ①为什么对单个梁加腋【单项布置】没有出钢筋实体呢? 回复:梁加腋是不能够单独布置的,只能基于梁布置。设置好梁配筋信息后,对布置过加腋的梁进行【单项布置】即可查看加腋钢筋信息。 查改加腋信息 使用背景 用于修改已布置的加腋图元的配筋信息。 操作过程 ①点击【PG电子BIM钢筋】选项卡,选择【梁加腋】,下拉点击【查改加腋信息】; ②点击【选择构件】,在视图中单选或多选加腋图元,在加腋信息查改窗口修改配筋信息。 6-2查改加腋信息 修改加腋类型 使用背景 修改加腋类型的功能,是用于 revit 建的梁加腋,分类为加腋后,软件自动识别成“上/下/侧腋”。 操作过程 ①将 revit 建的梁加腋进行构件分类; 6-3梁加腋构件分类 ②选择【梁加腋】,下拉点击【修改加腋类型】; ③系统自动提示识别完成; ④可点击【属性查看】按钮查看加腋钢筋信息。 6-4修改加腋类型


