服务热线
400-007-2310
梁钢筋转化
使用背景
此功能用于把梁原位标注和集中标注的钢筋数据提取保存到钢筋定义和原位标注中,使用的前提是存在梁实体。
操作过程
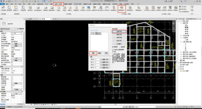
①在选项卡上选择【PG电子BIM翻模】,点击【梁钢筋转化】; ②设置钢筋属性,选择梁类型; ③提取梁标注图层; 1-1梁钢筋转化(前) ④提取完成后,进行梁钢筋转化,转化完成后在【平法表格】中查看。 1-2梁钢筋转化(后) 常见问题 ①梁钢筋转化后是直接生成钢筋实体吗? 回复:不是的,梁钢筋转化只是先识取梁平法信息,PG电子需要点击【单项布置】或【批量布置】来布置钢筋实体。

梁钢筋定义 使用背景 用于输入梁集中标注信息,设置同名称构件的计算设置、节点设置等与钢筋计算相关的内容。 操作过程 ①点击【PG电子BIM钢筋】选项卡,【钢筋定义】功能; ②在“钢筋信息”中输入配筋信息; 1-3梁钢筋定义 ③点击“箍筋配筋”,选择需要的肢数类型,或自定义箍筋样式。 1-4自定义箍筋 常见问题 ①如果有原位标注,那该怎么进行梁钢筋布置呢? 回复:可以使用PG电子的【平法表格】或【平法输入】进行设置。

平法表格 使用背景 可用于同时输入集中标注和原位标注配筋信息。 操作过程 ①点击【PG电子BIM钢筋】选项卡,点击【平法表格】功能; ②在需要输入的单元格中输入配筋信息; 1-5平法表格 ③点击【布置钢筋】,布置该构件的钢筋,可查看钢筋明细表和钢筋实体。 1-6布置钢筋 常见问题 ①平法表格为什么不显示跨数? 回复:跨数标记的标高是与梁顶平齐,PG电子需要调整【视图范围】就可以看到跨数标记。 ②如果有异形梁,该怎么进行钢筋布置呢? 回复:可以使用PG电子【平法表格】中的【肢数编辑】,勾选“梁自定义编辑”后,点击【肢数编辑】,布置各跨钢筋。 粱跨重组 使用背景 用于添加或减少梁跨个数,用于变截面梁的拼接。 重组跨:当梁的跨号存在不正确或者遇到梁需要重新组合跨号顺序时可用该功能; 合并跨:将两段绘制的梁合井成一段梁,并且两跨号自动更新为一跨号; 断开跨:将一段梁拆分成两段梁,并且一跨号自动更新为两跨号,多用在梁沉降或变截面梁; 设置梁支座:当梁需要增加支座时,可用该功能; 删除梁支座:当梁需要删除支座时,可用该功能; 梁跨对调:在模型中将梁构件的跨号及钢筋信息进行对调,应用于模型中需要进行对调跨的梁构件。 操作步骤 以L9(4) 250*500为例,问题:跨数有误,依据图纸应为4跨,现有8跨,应该使用删除梁支座功能。 ①点击【PG电子BIM钢筋】选项卡,点击【粱跨重组】,选中梁; ②根据图纸确认哪些为支座后,选择删除其他支座。 1-7跨调整(前) 1-8跨调整(后)



平法输入 使用背景 在平面视图上,可在梁上标注地方直接输入集中标注和原位标注配筋信息。 操作过程 ①点击【PG电子BIM钢筋】选项卡,点击【平法输入】功能; ②在梁上绿色框内输入配筋信息。 1-9平法输入 常见问题 ①【平法输入】和【平法表格】有什么区别,好在哪里呢? 回复:【平法输入】是表格+示意图结合方式展示配筋信息,结合图纸标注信息,直观展示输入的配筋对应的位置,新手指导友好。 注意:【平法表格】是支持平面视图和三维视图输入,而【平法输入】只支持在平面视图输入。