服务热线
400-007-2310
桩基转化
使用背景
将CAD桩基图层转化为桩基实体。
操作过程
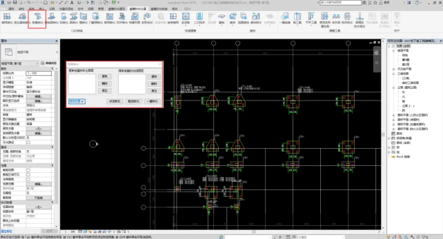
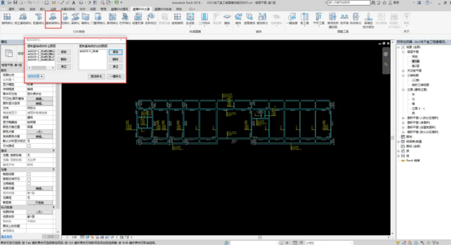
①在选项卡上选择【PG电子BIM翻模】,点击【桩基转化】弹出转化界面; ②点击左下角【设置】,设置相关属性(长度、标高等); ③桩基标注提取相应的标注、边线图层; ④选择需要的转化方式。 2-1桩基转化(前) 2-2桩基转化(后) 常见问题 ①目前支持桩基转换类型有哪些? 回复:预制桩、冲(钻)孔灌注桩、沉管灌注桩、人工挖孔灌注桩。 独立基础转化 使用背景 将CAD独立基础图层转化为独立基础实体。 操作过程 ①在选项卡上选择【PG电子BIM翻模】,点击【独立基础转化】弹出转化界面; ②点击左下角【设置】,设置相关属性(厚度、标高等); ③独立基础标注提取相应的标注、边线图层; ④选择需要的转化方式。 2-3独立基础转化(前) 2-4独立基础转化(后) 常见问题 ①翻模过程中常出现构件翻不出来? 解决方法:确认规则处周长的范围是否满足图纸,若不满足,手动进行更改; ②翻模出来后的基础厚度、顶标高如何设置? 解决方法:在翻模之前规则处是否有设置厚度、标高参数信息。 注意:该处单位为(m);该处设置的标高是指多数的标高,若有个别高度不同,翻模后手动调整修改。 手动调整修改方式:以ZJ1(1200*1200)为例: 翻模后的高度为0.000,根据图纸所示应为1.500,在属性界面输入偏移值(﹢1500:向上偏移1500mm;-1500:向下偏移1500mm)。 基础梁转化 使用背景 将CAD基础梁图层转化为桩基实体。 操作过程 ①在选项卡上选择【PG电子BIM翻模】,点击【基础梁转化】弹出转化界面; ②点击左下角【设置】,设置相关属性(名称前缀、标高等); ③基础梁标注提取相应的标注、边线图层; ④选择需要的转化方式。 2-5基础梁转化(前) 2-6基础梁转化(后) 常见问题 ①一根梁有多跨数,某一跨的原位标注尺寸与集中标注尺寸不一致情况,软件能否自动识别判断? 回复:软件会根据原位标注信息自动识别判断,如DL8(11) 240*400,集中标注的高度为400,但某跨的高度为600。 2-7基础梁转化(识别原位标注尺寸) 桩顶平承台底 使用背景 根据设置参数,将建筑模型构件桩基的顶标高自动调整到相对应的承台底。 操作过程 ①点击【桩顶平承台底】功能,弹出偏移值设置界面,输入偏移值; 2-8板合并失败提示 ②选择需要平齐的桩,点击左上角【完成】按钮; 2-9桩顶平承台底(前) ③桩基的顶标高自动调整到相对应的承台底。 2-10桩顶平承台底(后) 常见问题 ①桩构件可以与杯口基础平齐吗? 回复:可以。 2-11桩基平齐杯口基础(前) 2-12桩基平齐杯口基础(后) ②多个桩基可以连接一个承台吗? 2-13多桩平承台底(前) 2-14多桩平承台底(后) 回复:可以,这种承台称作群桩承台,一般用于大型建筑,如桥梁、高层建筑等。 生成底板 操作过程 ①选择功能,新建类型; ②依据图纸设立厚度、生成标高、外扩宽度等参数信息; ③选择布置方式,框选布置。 2-15生成底板(前) 2-16生成底板(后) 升降板连接 使用背景 在现浇板存在高低差时,根据图纸说明进行设置。 操作过程 ①选择功能,选择需要连接的两块现浇板; ②设置升降板连接尺寸参数; ③确定后生成构件。 2-17升降板连接(前) 2-18升降板连接(后) 常见问题 ①功能在使用过程中,总感觉不好用,有时候布置不成功? 回复:使用功能之前自行检查:两块板投影线是否有重合的板边,通俗的来说:俯视图看下去有相切;两块板顶面和底面是否是不同高,至少有一个面存在高差。
















