服务热线
400-007-2310
墙保温
使用背景
功能是在墙体面上布置一道保温,包括砖墙保温、砼墙保温。
操作过程
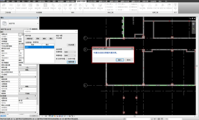
①在选项卡上选择【PG电子BIM建模】—保温,选择【墙保温】功能; ②选择砼墙保温/砖墙保温,新建类型TQBW1/ZQBW1; ③选择布置方式:手动布置、楼层布置。 2-1砖墙保温(前) 2-2砖墙保温(后) 注意: ①手动布置:在平面视图生成,绘制时是以绘制线段,再连续两次右击“取消”/两次ESC退出表示完成绘制。 常见问题 ①布置时不小心选择砼墙保温,实际模型情况为砌体墙,这时如何解决? 回复:软件布置时会自动判断墙体属性(砼墙/砖墙),提供布置结果提示。 2-3布置结果


2、柱保温 使用背景 在柱边线上布置保温。 操作过程 ①在选项卡上选择【PG电子BIM建模】—防水,选择【柱保温】功能; ②新建类型ZBW1; ③选择布置方式:手动布置、选柱布置; 注意: ①手动布置:在平面视图生成,绘制时是以绘制线段,再连续两次右击“取消”/两次ESC退出表示完成绘制。 2-4柱保温(前) 2-5柱保温(后) 常见问题 ①柱保温适用于哪种类型的柱构件? 回复:适用于不与墙、天棚相连的独立柱。 ②需要计算柱保温体积,在布置柱保温功能界面没有看见输入体积的信息,软件按照多少数值计算的吗? 回复:在PG电子BIM土建模块下方的【计算设置】功能中项目输出栏有附加尺寸,输入实际项目的保温厚度,默认厚度为50。 2-6柱保温厚度设置


3、梁保温 使用背景 在梁边线上布置保温。 操作过程 ①在选项卡上选择【PG电子BIM建模】—防水,选择【梁保温】功能; ②新建类型LBW1; ③选择布置方式:手动布置; 注意: ①手动布置:在平面视图生成,绘制时是以绘制线段,再连续两次右击“取消”/两次ESC退出表示完成绘制。 2-7梁保温(前) 2-8梁保温(后) 常见问题 ①梁保温适用于哪种类型的柱构件? 回复:适用于不与墙、天棚相连的独立柱。
