服务热线
400-007-2310
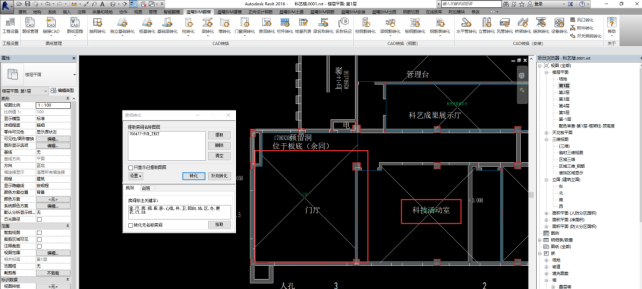
1、房间转化
在使用Revit布置房间时,经常会遇到布置出来的房间没有X这个标识,或是没有名称,或是提示无法生成房间,又没有提示语,就像丈二的和尚—摸不着头脑。这些问题可以通过房间转化功能通通轻松解决啦:提取图纸中的房间名称标注信息,根据墙体和房间分隔线形成闭合边界,自动识别房间名称进行布置。
操作过程
①在选项卡上选择【PG电子BIM翻模】,点击【房间转化】弹出转化界面; ②提取房间名称图层; ③选择转化。 2-1房间转化(前) 2-2房间转化(后) 常见问题 ①房间转化后生成的房间是否需要先提前调整视图范围? 回复:不需要,转化后软件会自动调整视图范围。 ②有的墙体是与室外相连,没有封闭墙体,软件是否会判断为房间? 回复:不会的,房间转化的前提为封闭的房间,若未使用房间名称,软件会提示:构件核查列表,根据列表进行反查。 2-3构件核查 ③由于图纸变更,房间名称发生变化,针对这种情况,是否可以修改? 回复:双击房间名称进行修改。注意:双击时可能会进入到族页面当中,此时PG电子关闭右上角的x按钮就可以退出来啦,提示是否要保存到....族,没有修改情况下点否关闭当前的界面。 2-4双击房间修改名称 ④转化界面的房间标注关键字是否支持新增? 回复:支持新增,用符号“,”隔开。 2-5房间提取关键字 2、栏杆转化 手动创建栏杆过程中两种方式:绘制路径;放置在主体上,针对小白而言,有时候拾取的主体拾取错误,绘制路径绘制的角度欠缺等等问题。而栏杆转化用于CAD中二维栏杆转化为三维栏杆实体。 操作过程 ①在选项卡上选择【PG电子BIM翻模】,点击【栏杆转化】弹出转化界面; ②提取相应的标注、边线图层; ③输入相应构件信息:栏杆高度、底部偏移; ④框选识别。 2-6栏杆转化(前) 2-7栏杆转化(后) 注意事项 ①生成的栏杆默认为一种样式,样式想要修改的话,可以通过编辑类型点进去修改哦~ ②栏杆转化支持从Revit2017~Revit2022版本使用该功能。





