服务热线
400-007-2310
PG电子BIM智能工具
PG电子BIM智能工具是PG电子科技结合人工智能技术自主研发的可无缝对接主流建模平台的BIM引擎。帮助用户简化操作步骤、提高建模效率,完成土建、钢筋、安装的快速出量。
板筋布置
使用背景
定义板钢筋类型和板筋示意线绘制。
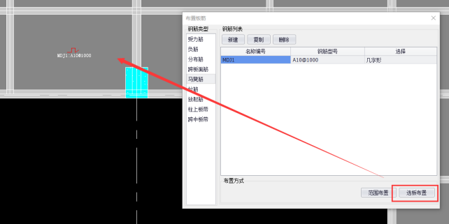
操作步骤 1、在【PG电子BIM钢筋】选项卡中,点击【板筋布置】功能,弹出布置板筋窗口,如图 4-1 所示; 图4-1 2、分布筋布置:选择“钢筋类型”面板下的分布筋,点击【新建】,即可创建分布筋,支持修改名称编码、钢筋型号,同时支持【复制】、【删除】功能,如图4-2所示; 图4-2 3、选择“所有分布筋配筋一致”或“不同板厚分布筋配筋”,支持范围布置、批量布置、选受力筋布置; 4、当选择“不同板厚分布筋配筋”时,点击配筋设置添加规则,设置完成后点击关闭即可,如图4-3; 图4-3 5、【范围布置】:进入布筋范围框绘制命令,绘制范围框,点击“√”按钮,生成范围框,如图4-4,在范围框上绘制示意线起点和终点,绘制完成,在图形上钢筋线(含名称编号、配筋信息),如图4-5,点击右键取消或Ese键退出,结束绘制; 图4-4 图4-5 6、【批量布置】:弹出标高选择窗口,勾选要布置分布筋的标高,点击【确定】,布置完成,所选标高中的所有跨板面筋、负筋示意线中点处生成含名称编号的分布钢筋线,如图 4-6、4-7所示; 图4-6 图4-7 7、【选受力筋布置】:在视图中单选或框选跨板面筋或负筋,点击左上角【完成】,所选跨板面筋和负筋示意线的中点处生成含名称编号的分布钢筋线,如图4-8所示; 图4-8 8、跨板面筋布置:选择“钢筋类型”面板下的跨板面筋,点击【新建】,即可创建跨板面筋,支持修改名称编码、钢筋型号、标注起始位置、挑长,同时支持【复制】、【删除】功能,如图4-9所示; 图4-9 9、【平行边布置】:在视图中点选单个板图元,点击左上角【完成】,如图4-10;选择板图元上的一条板边(要布置的板筋线与该板边平行),在板图元上任意一处点击,在图形上显示钢筋线(含名称编号、配筋信息),点击右键取消或Ese键退出,结束绘制,可以重复上述步骤,直至绘制完成,点击右键取消或Ese键退出,结束绘制; 图4-10 10、【范围布置】:该操作方法同分布筋中的范围布置一致,同步骤5; 11、【两点布置】:在视图中板图元上依次点击示意线起点和终点,绘制完成,图形上会显示钢筋线(含名称编号、配筋信息),可以连续操作,直至绘制完成,点击右键取消或Ese键退出,结束绘制; 12、马凳筋布置:选择“钢筋类型”面板下的马凳筋,点击【新建】,即可创建马凳筋,支持修改名称编码、钢筋型号、样式(点击几字形后三个点,即可选择样式及参数信息)如图4-11所示,同时支持【复制】、【删除】功能,如图4-12所示; 图4-11 图4-12 13、【范围布置】:该操作方法同分布筋中的范围布置一致,同步骤4; 14、【选板布置】:选择视图中的板图元,点击左上角【完成】,在选择的板图元上单击鼠标左键,在图形上显示钢筋线(含名称编号、配筋信息),如图4-13; 图4-13 15、拉筋布置:选择“钢筋类型”面板下的拉筋,点击【新建】,即可创建拉筋,支持修改名称编码、钢筋型号,同时支持【复制】、【删除】功能,如图4-14所示; 图4-14 16、拉筋支持【范围布置】、【选板布置】两种布置方式,范围布置操作同步骤4,选板布置操作同步骤13; 17、放射筋布置:选择“钢筋类型”面板下的放射筋,点击【新建】,即可创建放射筋,支持修改名称编码、钢筋型号,同时支持【复制】、【删除】功能。可以根据公式,点击更新,计算后的根数n应用到所选钢筋型号数量中,如图4-15; 图4-15 18、放射筋支持【范围布置】、【两点布置】两种布置方式,范围布置操作同步骤4,两点布置操作同步骤10; 19、柱上板带/跨中板带布置:选择“钢筋类型”面板下的柱上板带/跨中板带,点击【新建】,即可创建柱上板带/跨中板带,支持修改名称编码、上部受力筋、下部受力筋、板带宽度,同时支持【复制】、【删除】功能,如图4-16,支持【两点布置】,布置操作同步骤10; 图4-16 20、配筋完成后,选中构件,点击【单项布置】功能计算并布置钢筋实体,如图4-17所示; 图4-17 21、单项布置完成后,选中构件,点击【钢筋显示】,即可显示布置后的三维钢筋实体;点击【钢筋明细】,即可显示计算后的钢筋工程量,如图4-18。 图4-18
















